//
东方礼序的当代转译与空间诗学
北京市,朝阳区

项目择址北京朝阳区核心腹地,坐拥朝阳北路南侧优越区位,距国贸CBD仅8.5公里。作为连接城市繁华与生态静谧的门户节点,朝观天珺以国际视野重新解读地缘价值,将东方礼序精神转译为当代空间语言,打造兼具文化认同与现代生活体验的人居范本。

图片18.png


图片19.png


   

整体规划 五进礼序空间结构|东方美学的当代叙事

在约5500㎡实景示范区内,以“玉为魂、礼为脉”构建完整的五进空间序列。从社区大门至下沉会所,建筑与景观形成无缝融合的系统性服务体系,重新定义归家仪典与社区生活场景。


图片20.png


一进 玉迎门|三重飞檐现代转译×水墨玉影壁对景


大门以紫禁城三重飞檐为灵感,以宽33米、高9米的尺度重塑东方门第仪制。基底采用贝金米黄石材,通过亚光、剁斧、圆弧三种肌理交织并置,展现材质的时光质感。对景影壁选用水墨玉奢石,天然石纹如山水长卷,将东方意境凝固于当代界面。


图片21.jpg


图片22.jpg


图片23.jpg


图片24.jpg


二进 绮丽门堂|透光云石灯饰×无界景观共生


8米高柱廊空间作为归心序曲,实现从公共到私密的情绪过渡。接待大堂以透光云石吊灯营造温润光影,西立面超尺度玻璃幕墙消融室内外界限,使“镜波八树”景观成为空间自然延伸,实现建筑与场景的无界共生。


图片25.jpg


图片26.jpg


图片27.jpg


图片30.jpg


三进 白玉廊|三十米礼仪轴线×镜波八树光影诗学


约30米礼仪长廊以白玉柱廊构建秩序,廊间水景倒映八棵造型栾树,形成“树影入波,月碎成金”的光影画卷。长廊不仅是归家动线,更成为承载东方美学意境的诗意通道。


图片31.jpg


图片32.jpg


四进 玉潭院|下沉翡翠水院×建筑浮玉意境


800㎡下沉水院以“玉生于水”为灵感,翡翠色潭水与建筑玻璃幕墙无缝衔接,形成“建筑浮于水上”的视觉奇观。通过玉桥、静水、叠瀑等元素,构建驻足观境的静谧场景,强化“观礼”的美学体验。


图片33.jpg


图片34.jpg


图片35.jpg


图片36.jpg


五进 珺 CLUB|下沉式高定会所×七重功能复合


近2000㎡下沉会所整合恒温无边际泳池、健身瑜伽、私宴影音等七重功能,以酒店式配套构建社区精神栖居地。空间设计延续东方美学基调,实现从社交到悦己的全场景覆盖。


图片44.png


图片43.png


本项目定位为纯粹的改善型社区,主力户型涵盖92- 157㎡三居室与四居室产品。在户型设计上,从居住者情感体验维度切入,提出“流动空间、超感生活” 的空间理念。

其中139户型为经典的四叶草布局,通过空间组织与布局优化,入户拥有独立的对景玄关,餐客厅做到5.5米等宽并且实现了LDK 一体化设计,打破了传统空间壁垒,增强空间连贯性与互动性;在南向做到了双套房的设计而且主卧做到270度转角落地窗;提升居住舒适度与生活场景丰富度。


图片39.png


图片40.png


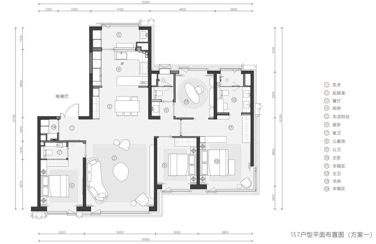
157户型以 “奢阔尺度、功能全能、仪式感营造” 为核心,南向双套房设计,兼顾私密与灵活;书房与主卧可分可合适配多元需求,满足不同家庭结构的使用场景; 4.15 米开间 U 型厨房搭配中西双厨与 LDK 一体化设计,从空间尺度、功能适配到场景联动全面优化,满足多人口家庭的烹饪与互动需求;独立生活阳台家政功能的“专属领地”,提升家居整洁与效率;户型精准匹配改善型家庭对居住品质的需求,从空间布局到细节设计均凸显舒适性与品质感。


图片41.png


图片42.png


结语


朝观天珺在“礼序与自然、传统与现代、开放与私密”之间取得精妙平衡,以“五进空间”为骨架,将东方礼序精神转译为可感知的当代生活场景。项目不仅重塑了归家仪典的当代范式,更通过空间诗学与材质演绎,打造出一座承载文化自信与现代生活理念的“精神容器”,为高端人居提供了兼具文化深度与时代精神的创新范本。



关于项目
项目信息

客户 :保利集团

场地面积 :27,500㎡

建筑面积 :116,400㎡

建成日期 :2025

HZS服务 :建筑设计

媒体链接

获奖

 

2025罗马设计奖 |  铂金奖

2025MUSE设计奖 |  金奖

2025TITAN房产奖 |  金奖

2025伦敦设计奖 |  铂金奖

2025纽约建筑设计奖 |  金奖


相关文章

HZS滙张思作品 | 保利·朝观天珺     


  • 关于
  • 我们的作品
  • 新闻
  • 联系